工程地點:蘇寧睿城 設計師:龐吉滬
戶型:三室兩廳 面積:105平 設計風格:美式風格
聯系在線客服:QQ:2981578584 電話:025-89616076
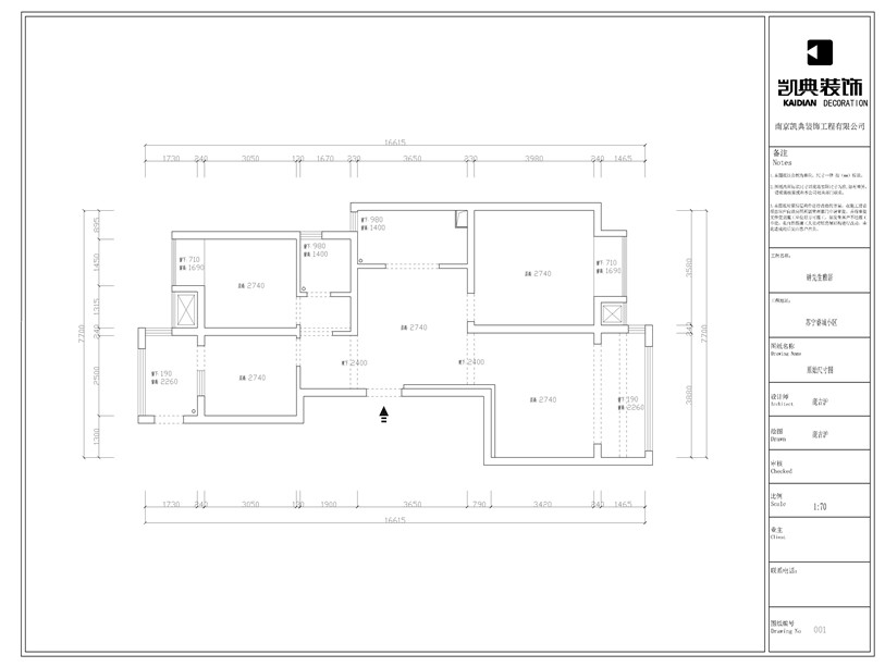
第一張原始結構圖

第二張平面布置圖

水電完工啊!師傅手藝杠杠滴




瓦工也完工啦!曬曬手藝



所有的柜子都是木工師傅現場打的,實用又美觀




工程地點:蘇寧睿城 設計師:龐吉滬
第一張原始結構圖

第二張平面布置圖

水電完工啊!師傅手藝杠杠滴




瓦工也完工啦!曬曬手藝



所有的柜子都是木工師傅現場打的,實用又美觀



